
HOME >> 施工事例(一覧)
川西市 車椅子対応バリアフリー住宅 T様邸竣工
09年08月20
川西市 T様邸
■プラン:


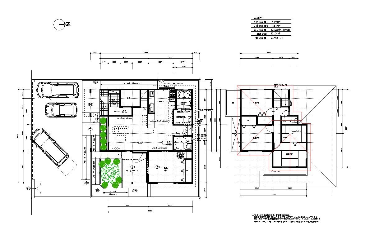
■ 建物データ
敷地面積:257.85㎡
構 造:木造2階建て
延床面積:137.22㎡
用途地域:第二種中高層住居専用地域 建蔽率:60% 容積率:200%
■プラン:
今回のお施主様は奥様が車椅子での生活になられた為に住宅を新築される事になりました。
敷地は南側に面して間口が13.5mありましたので、ゾーニングに於いては、全ての居室を南側に配置して、明るくかつ風通しのよいプランとしました。車椅子の奥様は1階に寝室を設けます。ご主人とお子様の個室は2階に持っていきました。そこで、家族が自然に接触できるように階段はリビングイン階段としました。奥様はディサービスをお受けになる時など外出される時は寝室からあるいはリビングから直接出入り可能なように、リビングと寝室に面する広いテラスを設けて、テラスからスロープで駐車場にアプローチします。
■ アプローチ:車の背後にあるブロックに沿ってスロープを設けました。植栽の後方にテラスがあります。
■ リビング:写真右のサッシから直接テラスに出入り可能です。車椅子からサッシの開け閉めが楽なようにアシスト取手を設けました。その奥が奥様の寝室になります。この出入り口ドアは操作が楽に行えるハンガードアとしています。また有効開口寸法が80センチありますので車椅子での通行も楽に行えます。写真奥に見えるのが家事コーナー。その右のドアがトイレとなります。トイレの出入り口ドアもハンガードアとしています。







■ フラットレール:奥様の寝室からテラスへの出入り口。サッシの下端はフラットレールとしていますので車椅子での出入りも楽に行えます。
■ 家事コーナー:カウンターは車椅子のアームレストが入る高さとしています。車椅子での生活では一般の場合と比べて、いろんな物の高さの基準が変わってきます。今回もご利用の車椅子の座の高さ、アームレストの高さなどを、お施主様に実際に測って頂きました。
■ 収納:奥様の寝室に設けた収納。また棚が付いておりませんが、車椅子で利用できる収納の範囲はかなり狭くなります。また、下部は車椅子のフットレストが入り込む形にしておかないと手が届かないケースが出てきますので注意が必要です。また、写真左の壁に映っているコンセントの位置も車椅子に合わせて床から45センチの位置としています。これも車椅子から容易にコンセントが利用できる高さとしています。
■ 車椅子対応洗面化粧台 車椅子のフットレストとアームレストが入り込む事ができるタイプです。イナックス ドゥケア・カウンター L=900
■ 光が差し込む階段ホール:今回のプランはリビングインの階段としました。階段は西側の隣地に面していますが、窓の高さと大きさを考えて階段下まで光が差し込むように計画しています。
■ 2階階段ホールから望む風景:2階の階段を上がると北側の山が見えます。また、北側は資料館となっています。
■ 2階の居室から望む風景:2階の南側の窓からは遠くの山並みを見ることができます。どこか自然がみえるとほっとします。















