
HOME >> 施工事例(一覧)
緑に囲まれた豊かな空間 西宮市O様邸
09年08月30
■西宮市 O様邸

■外観

■玄関アプローチ

■玄関: 土間コンクリートの床はお施主様が自ら玉石を並べてデザインされました。また、坪庭的な水場と地窓を設けています。

■坪庭

■リビングから坪庭を望む

■2階ホールからリビングを望む

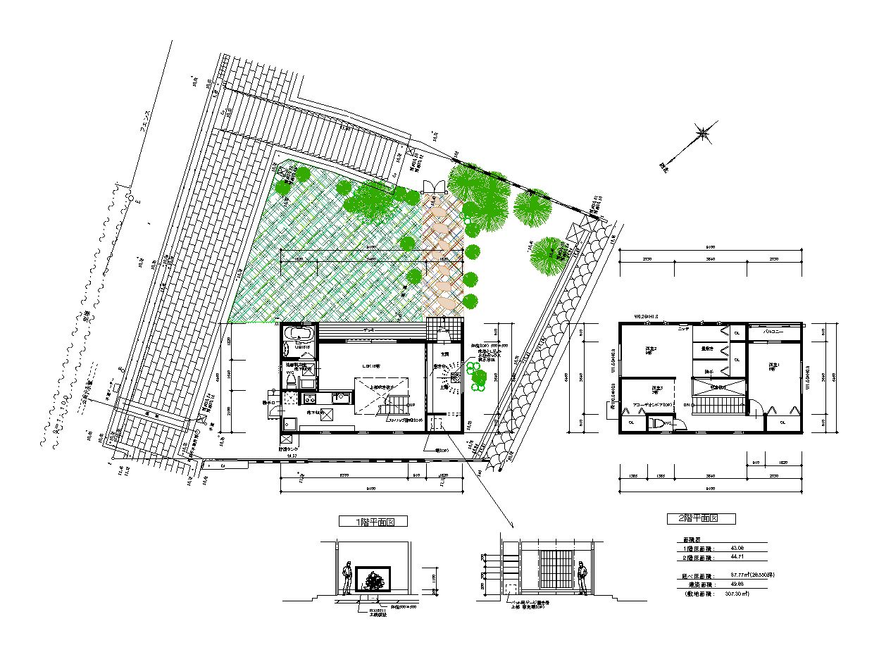
■ 建物データ
敷地面積:307.30㎡
構 造:木造2階建て
延床面積:87.77㎡
用途地域:第1種低層住居専用地域 建蔽率:40% 容積率:100%
■ プラン
敷地は南西方向が隣地の法面で高くなっており、北東方面は逆に砂防による擁壁が築造されている。今回のお施主様の要望では小さくても豊かな空間のある住まいを作ることでした。配置計画では南西の法面からの影を見て、最大にお日様を取り入れる計画としました。延床面積が約26坪である為、玄関→LDK・水廻り→階段→2階の個室と単純なゾーニングとしました。単純な中にも、リビングの階段と吹抜けを一体にして広がり感を出しています。また、リビングの外にはウッドデッキを設けてリビングからの広がり感を持たせています。
敷地は南西方向が隣地の法面で高くなっており、北東方面は逆に砂防による擁壁が築造されている。今回のお施主様の要望では小さくても豊かな空間のある住まいを作ることでした。配置計画では南西の法面からの影を見て、最大にお日様を取り入れる計画としました。延床面積が約26坪である為、玄関→LDK・水廻り→階段→2階の個室と単純なゾーニングとしました。単純な中にも、リビングの階段と吹抜けを一体にして広がり感を出しています。また、リビングの外にはウッドデッキを設けてリビングからの広がり感を持たせています。
■外観
■玄関アプローチ
■玄関: 土間コンクリートの床はお施主様が自ら玉石を並べてデザインされました。また、坪庭的な水場と地窓を設けています。
■坪庭
■リビングから坪庭を望む
■2階ホールからリビングを望む















