
HOME >> 施工事例(一覧)
変形地に建つ住宅 箕面市 K様邸
09年09月29
■ 箕面市 K様邸
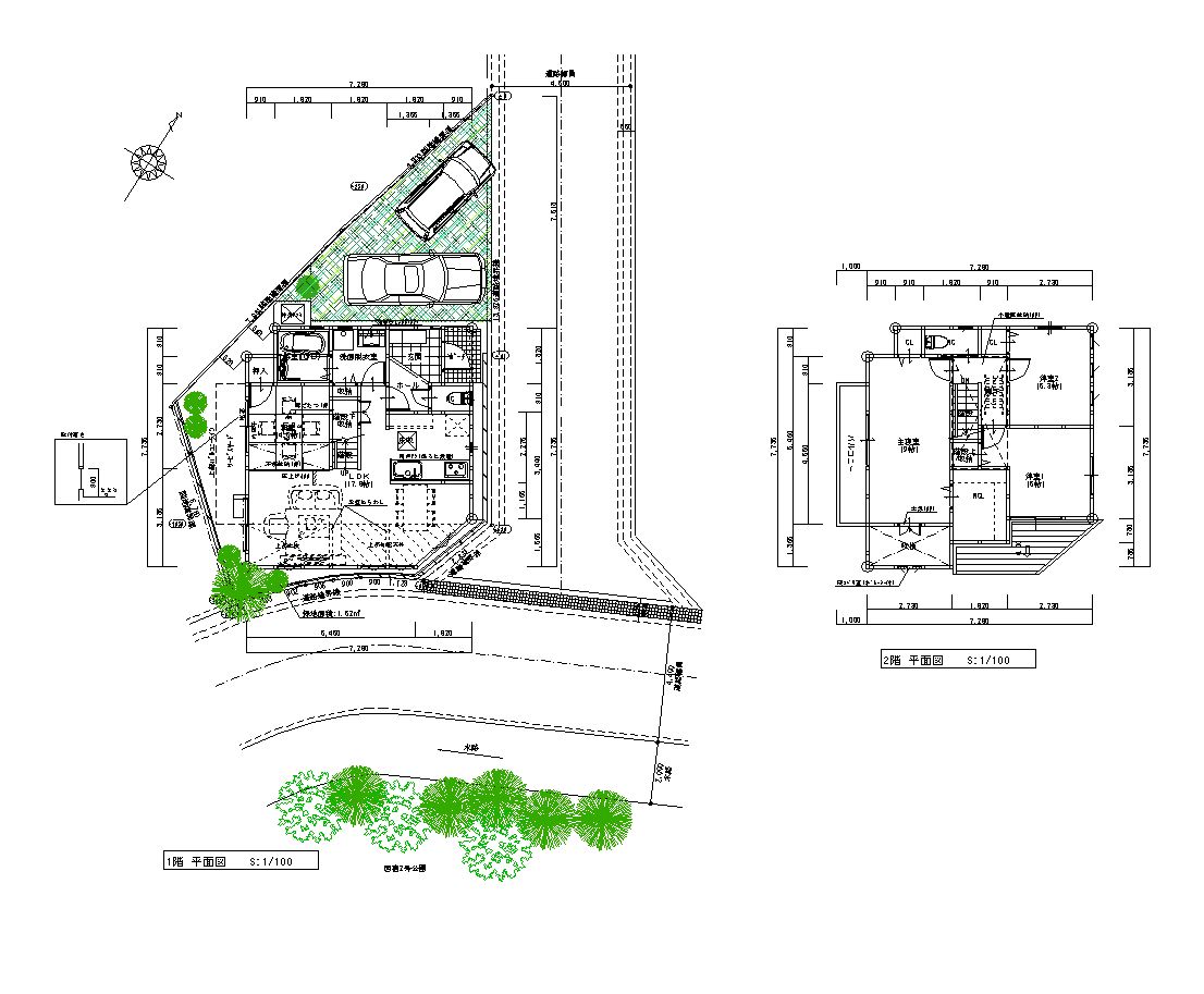
■ 建物データ敷地面積:107.15㎡
構 造:木造2階建て
延床面積:102.90㎡
用途地域:1種中高層住居専用地域 建蔽率:70% 容積率:180%
■プラン
■ 建物データ敷地面積:107.15㎡
構 造:木造2階建て
延床面積:102.90㎡
用途地域:1種中高層住居専用地域 建蔽率:70% 容積率:180%
■プラン
敷地は三角形に近い変形地で、西側が田んぼで1.8m下がっていました。
北側と南側が道路となっており角地適用の敷地です。南側の道路の反対には公園の緑が広がっています。
ゾーニングではお客様の要望で2台分の駐車スペースが必要でしたので、三角地の北側を駐車スペースとして確保しました。
また、公園の緑を取り込むようにリビングとダイニングを南側に配置しました。
西側は田んぼで高低差がありますので、リビングから初夏には緑の、秋には黄金色の稲穂を眺めることができます。

■南側外観
南側に設けた4つの横滑り出し窓はキッチンから炊事しながら、またリビングからも公園の緑を望むことができます。

■西側外観
田んぼの緑をリビングの掃き出し窓から望むことができます。

■リビング窓から南側の公園の緑を取り込む。
自然の風景を額縁に飾った絵のように見せています。

■リビングから吹き抜けを望む

北側と南側が道路となっており角地適用の敷地です。南側の道路の反対には公園の緑が広がっています。
ゾーニングではお客様の要望で2台分の駐車スペースが必要でしたので、三角地の北側を駐車スペースとして確保しました。
また、公園の緑を取り込むようにリビングとダイニングを南側に配置しました。
西側は田んぼで高低差がありますので、リビングから初夏には緑の、秋には黄金色の稲穂を眺めることができます。
■南側外観
南側に設けた4つの横滑り出し窓はキッチンから炊事しながら、またリビングからも公園の緑を望むことができます。
■西側外観
田んぼの緑をリビングの掃き出し窓から望むことができます。
■リビング窓から南側の公園の緑を取り込む。
自然の風景を額縁に飾った絵のように見せています。
■リビングから吹き抜けを望む















